Maison neuve à
Le Rouget
(15290) Référence :
PM2339791_1
Prix du projet : Maison avec Terrain
prix 231 550 €
- 4 pièces
- 2 chambres
- Surface maison 87 m2
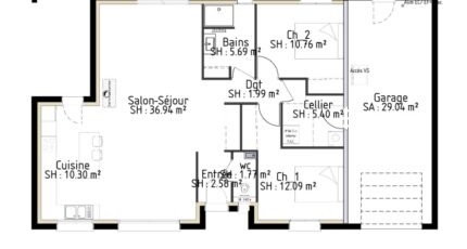
Venez découvrir cette superbe maison de plain-pied de 87.52 m² sur un terrain de 749 m² située sur la commune de ROUMEGOUX, offrant un environnement calme, proche de la commune Le ROUGET, très sollicitée, pour son accès en direction du département du LOT et ses nombreuses commodités.
Dès votre arrivée, vous serez séduit par l'entrée, offrant un grand espace de rangement et un WC avec fenêtre pour plus de commodités. L'espace de vie principal est un véritable atout : une cuisine spacieuse et baignée de lumière, ouverte sur un vaste séjour lumineux, créant ainsi une atmosphère chaleureuse et conviviale. Grâce à une grande baie vitrée coulissante, vous accédez directement à une terrasse ensoleillée, idéale pour profiter de l'extérieur. Le plus de cet agencement , est le Patio, couvert, donnant sur le jardin. Une possibilité d'aménager un atelier dans l'immense garage de 29 m², attenant à la maison, traversant, muni d'une porte de garage sectionnelle motorisée et d'une porte de service avec un accès au jardin.
Le prix de 231 550,00€ comprends le Terrain + la Maison ainsi que l'ensemble des frais afférents (Frais de notaire, accès chantier, branchements, remise des terres...).
Un agencement bien pensé et une belle luminosité font de cette maison un lieu de vie parfait. À découvrir sans hésiter !
Mentions légales
Terrain proposé par un partenaire foncier selon disponibilités et autorisation de publicité au prix de 13 482 €. Hors droit d'enregistrement et frais de notaire. Maison proposée, avec un contrat de construction de maison individuelle, dans le cadre de la loi du 19/12/1990, au prix de 218 068 € (Hors branchements et raccordements, papiers peints, peintures, revêtement de sol dans les chambres, qui sont chiffrés dans les travaux qui restent à charge du client. Tarif modifiable sans préavis). Étiquette énergie : A. Différents modèles disponibles pour ce terrain. Assurances et garanties du constructeur comprises (RC professionnelle, décennale, dommage ouvrage).Agence Maisons Partout de Aurillac (15000)
- Téléphone :
- 04 71 48 17 17
- Adressse :
- 15 bis avenue des Volontaires
15000 Aurillac, France
