D92_P886V5

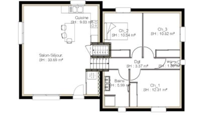
Plan maison 5 pièces 3 chambres Surface maison 92 m2

Cette maison sur demi-sol a été pensée pour s'adapter à beaucoup de terrains. Avec ces 2 volumes décalés, elle peut s'intégrer sur des parcelles à faibles pentes comme à des terrains plus pentus.
Elle comprend un bel espace de vie, de plain-pied avec un accès direct sur les extérieurs et son garage sous la partie nuit.
Au dessus, l'espace nuit se compose de 3 chambres avec leur salle de bains et sanitaires.
La partie habitable fait 92m² accompagné d'un sous-sol de 52m².
Sa toiture adaptée aux régions de montagnes permet de créer de l'espace en comble, idéal si vous souhaitez agrandir un jour, à moindre coût.

Construire ce modèle ?

    * Champs obligatoires

    Vos informations sont traitées par HEXAOM et transmises à un conseiller commercial qui vous contactera afin de répondre à votre demande. Les plans et images présentés sur notre site sont la propriété d’HEXAOM et ne peuvent pas être reproduits sans son accord. Pour retrouver notre politique de protection des données personnelles et exercer vos droits conformément à la « loi informatique et liberté » cliquez-ici.