PP103__P2293V3

Plan maison 6 pièces 3 chambres Surface maison 130 m2

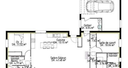
Cette maison se démarque de par sa forme. Elle se compose d'une surface habitable de 130 m² composée d'un espace jour central de 54 m² avec cuisine ouverte qui donne sur le salon et une salle à manger.
L'espace nuit se compose en 2 coins. D'un coté, 1 chambre avec placards, une salle d'eau, un WC indépendant et un bureau qui peut être transformée en chambre. De l'autre, une suite parentale avec dressing et salle d'eau privatisée, ainsi qu'une salle de sport.
Ce plan est très fonctionnel et allie esthétique, modernité avec une ligne évolutive pour cette maison de plain-pied.
Un garage accolé au volume avec un espace Cellier/Buanderie attenant, directement accessible depuis la partie jour.

Construire ce modèle ?

    * Champs obligatoires

    Vos informations sont traitées par HEXAOM et transmises à un conseiller commercial qui vous contactera afin de répondre à votre demande. Les plans et images présentés sur notre site sont la propriété d’HEXAOM et ne peuvent pas être reproduits sans son accord. Pour retrouver notre politique de protection des données personnelles et exercer vos droits conformément à la « loi informatique et liberté » cliquez-ici.