PP103_P1256V5

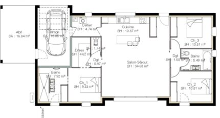
Plan maison 5 pièces 3 chambres Surface maison 103 m2

Cette maison de plain-pied, aux lignes modernes, comprend un espace de vie central, avec cuisine, salon, séjour et hall d'entrée.
La particularité est le coin nuit, qui se compose de 2 espaces distincts avec une suite parentale d'un côté et 2 chambres de l'autre.
La suite est accompagnée d'une salle de bain et d'un dressing et l'espace enfants bénéficie aussi de sa propre salle de bains.
Le garage est accolé et relié par un cellier.
surface habitable 103m² dont un coin jour de 50m².

Construire ce modèle ?

    * Champs obligatoires

    Vos informations sont traitées par HEXAOM et transmises à un conseiller commercial qui vous contactera afin de répondre à votre demande. Les plans et images présentés sur notre site sont la propriété d’HEXAOM et ne peuvent pas être reproduits sans son accord. Pour retrouver notre politique de protection des données personnelles et exercer vos droits conformément à la « loi informatique et liberté » cliquez-ici.