PP104_P2920V9_Duplicata

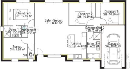
Plan maison 6 pièces 4 chambres Surface maison 104 m2

Cette maison aux lignes simples et épurées, développe un programme spacieux de 104m² avec un garage de 18 m², une grande pièce de vie avec cuisine ouverte, et 2 espaces nuits séparés, 1 bureau, idéal pour le télétravail, ou chambre d'appoint.

Idéal pour les terrains plats, cette construction a un vaste espace de vie de presque 44m² qui donne sur le jardin avec lumière traversante; Cette maison respecte la norme RE2020 qui apporte une meilleure performance énergétique de son bâti, et une réduction de son empreinte carbone.

Construire ce modèle ?

    * Champs obligatoires

    Vos informations sont traitées par HEXAOM et transmises à un conseiller commercial qui vous contactera afin de répondre à votre demande. Les plans et images présentés sur notre site sont la propriété d’HEXAOM et ne peuvent pas être reproduits sans son accord. Pour retrouver notre politique de protection des données personnelles et exercer vos droits conformément à la « loi informatique et liberté » cliquez-ici.