PP107_P1303V2

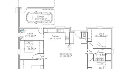
Plan maison 6 pièces 4 chambres Surface maison 107 m2

Cette maison de 107m² habitable est agencée de plain-pied. Elle se démarque par sa structure bois. En effet, son ossature est en bois, bâtie sur un vide sanitaire en béton, et ses façades sont entièrement bardées. Idéale pour s'intégrer dans un contexte rural et retrouver l'aspect chaleureux du bois.
Son plan se compose d'un espace vie au centre, avec cuisine, salon, séjour, hall d'entrée et de part et d'autre, 2 coins nuit distinct avec 4 chambres et une salle de bains. Parfait pour préserver plus d'intimité.
Un cellier fait le lien avec le garage attenant.
La pièce à vivre est ouverte sur l'extérieur avec 2 grandes baies qui donnent sur la terrasse.
Un conduit feu a été intégré en appoint du chauffage mais surtout pour renforcer le côté cosy de ce projet.
Le volume habitable fait 110m² et le garage 16m², avec un appentis de 18m² à côté.

Construire ce modèle ?

    * Champs obligatoires

    Vos informations sont traitées par HEXAOM et transmises à un conseiller commercial qui vous contactera afin de répondre à votre demande. Les plans et images présentés sur notre site sont la propriété d’HEXAOM et ne peuvent pas être reproduits sans son accord. Pour retrouver notre politique de protection des données personnelles et exercer vos droits conformément à la « loi informatique et liberté » cliquez-ici.