PP111_P2879

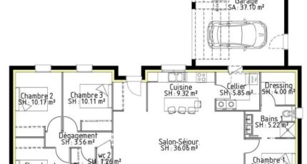
Plan maison 6 pièces 4 chambres Surface maison 111 m2

Cette future villa de plain-pied, d'une superficie habitable de 111 m² avec un double garage de 37 m² a été pensée pour répondre à toutes vos attentes.
Avec ses 4 chambres spacieuses, dont une suite parentale comprenant un dressing et une salle d'eau, elle offre un espace de vie généreux et fonctionnel de 45 m², idéal pour accueillir votre famille et partager des moments inoubliables.
Pour compléter ensemble, une terrasse de 22.50m² est prévue pour profiter des extérieurs depuis la pièce de vie.

Construire ce modèle ?

    * Champs obligatoires

    Vos informations sont traitées par HEXAOM et transmises à un conseiller commercial qui vous contactera afin de répondre à votre demande. Les plans et images présentés sur notre site sont la propriété d’HEXAOM et ne peuvent pas être reproduits sans son accord. Pour retrouver notre politique de protection des données personnelles et exercer vos droits conformément à la « loi informatique et liberté » cliquez-ici.