PP114_P1986V4

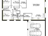
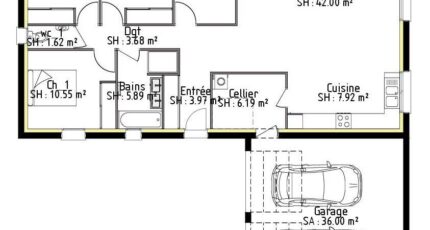
Plan maison 5 pièces 3 chambres Surface maison 114 m2

Maison de Plain-pied en forme de L, simple et épurée.
Elle se compose d'une surface habitable de 114m² composée d'un espace jour de 50 m² : une entrée avec penderie, une cuisine ouverte et un beau salon / séjour.
L'espace nuit se compose de 3 chambres avec placards, d'une salle de bains et d'un toilette indépendant.
Ce plan est très fonctionnel et allie esthétique, modernité avec une ligne évolutive pour cette maison de plain-pied en forme de L.
Un garage est intégré au volume et directement accessible depuis la partie habitable par un cellier.

Construire ce modèle ?

    * Champs obligatoires

    Vos informations sont traitées par HEXAOM et transmises à un conseiller commercial qui vous contactera afin de répondre à votre demande. Les plans et images présentés sur notre site sont la propriété d’HEXAOM et ne peuvent pas être reproduits sans son accord. Pour retrouver notre politique de protection des données personnelles et exercer vos droits conformément à la « loi informatique et liberté » cliquez-ici.