PP115_P2040

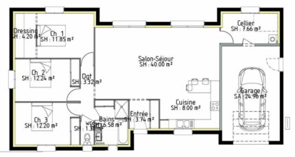
Plan maison 5 pièces 3 chambres Surface maison 115 m2

Cette grande maison de plain pied se compose d'une surface habitable de 115 m² composé d'un espace jour spacieux avec cuisine ouverte qui donne sur un salon et une salle à manger, orienté et ouvert sur la terrasse par 2 grandes baies vitrées coulissantes.
L'espace nuit dispose de 3 grandes chambres avec placards dont 1 avec dressing et d'une grande salle de bain avec douche et baignoire. Le garage est intégré au volume avec un cellier de presque 8m².
Ce plan est très fonctionnel et allie esthétique, modernité avec une ligne évolutive pour cette maison de plain-pied.

Construire ce modèle ?

    * Champs obligatoires

    Vos informations sont traitées par HEXAOM et transmises à un conseiller commercial qui vous contactera afin de répondre à votre demande. Les plans et images présentés sur notre site sont la propriété d’HEXAOM et ne peuvent pas être reproduits sans son accord. Pour retrouver notre politique de protection des données personnelles et exercer vos droits conformément à la « loi informatique et liberté » cliquez-ici.