PP117_P2775V3

Plan maison 5 pièces 3 chambres Surface maison 117 m2

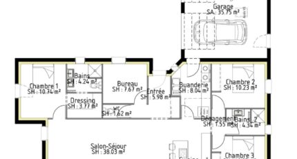
Cette maison aux lignes simples et épurées, développe un programme spacieux de 117m² avec a l'entrée : un bureau, un wc indépendant, une grande pièce de vie et 2 espaces nuits.
D'un coté, une suite d'une suite parentale (comprenant un dressing et une salle d'eau avec wc) attenant à l'espace de vie. De l'autre, 2 chambres et une salle d'eau.
Idéal pour les terrains plats, cette construction a un vaste espace de vie de presque 50m² qui donne sur le jardin.
Le garage de 36m² peut accueillir 2 places de stationnements. Il est accolé à la maison. On y accède depuis la buanderie.

Construire ce modèle ?

    * Champs obligatoires

    Vos informations sont traitées par HEXAOM et transmises à un conseiller commercial qui vous contactera afin de répondre à votre demande. Les plans et images présentés sur notre site sont la propriété d’HEXAOM et ne peuvent pas être reproduits sans son accord. Pour retrouver notre politique de protection des données personnelles et exercer vos droits conformément à la « loi informatique et liberté » cliquez-ici.