PP118_P2779V7

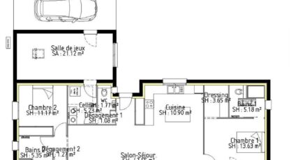
Plan maison 7 pièces 4 chambres Surface maison 122 m2

Cette maison de plain-pied de 118m² se démarque par sa forme.
L'espace vie se compose d'une entrée avec placard et WC indépendant, d'une grande cuisine de 10m² et d'un salon/séjour de 47m². Ce plan est composé de 2 espaces nuits. D'un coté, il y a l'espace des enfants avec 2 chambres et salle d'eau. De l'autre, la suite parentale avec dressing, salle d'eau et WC.
Ce projet est destiné aux terrains plat ou en très faible pente pour que la partie jour se connecte parfaitement au terrain naturel.
Une pièce supplémentaire (ici la salle de jeux) est accolé à la partie habitable qui peut être transformé en garage.
Un abri ouvert pouvant accueillir 2 véhicules est accolé.

Construire ce modèle ?

    * Champs obligatoires

    Vos informations sont traitées par HEXAOM et transmises à un conseiller commercial qui vous contactera afin de répondre à votre demande. Les plans et images présentés sur notre site sont la propriété d’HEXAOM et ne peuvent pas être reproduits sans son accord. Pour retrouver notre politique de protection des données personnelles et exercer vos droits conformément à la « loi informatique et liberté » cliquez-ici.