PP122_P1142V5

Plan maison 7 pièces 4 chambres Surface maison 122 m2

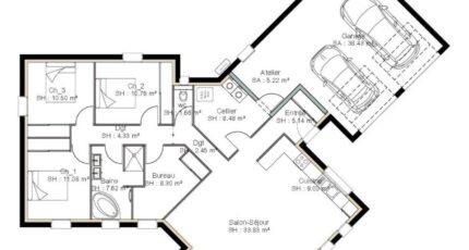
Cette maison de plain-pied de 122m² se démarque par sa forme en Y avec l'espace vie en V et le garage en T côté entrée et accès à la parcelle.
L'espace vie se compose d'un hall, cuisine et salon/séjour de 47m². du côté nuit, il y a 3 chambres avec un bureau/chambre d'amis, ainsi qu'une salle de bains.
Ce projet est destiné aux terrains plat ou en très faible pente pour que la partie jour se connecte parfaitement au terrain naturel.
Le garage est accolé avec une surface de 38m² prévu pour acceuillir 2 véhicules.

Construire ce modèle ?

    * Champs obligatoires

    Vos informations sont traitées par HEXAOM et transmises à un conseiller commercial qui vous contactera afin de répondre à votre demande. Les plans et images présentés sur notre site sont la propriété d’HEXAOM et ne peuvent pas être reproduits sans son accord. Pour retrouver notre politique de protection des données personnelles et exercer vos droits conformément à la « loi informatique et liberté » cliquez-ici.