PP128_P2462V3

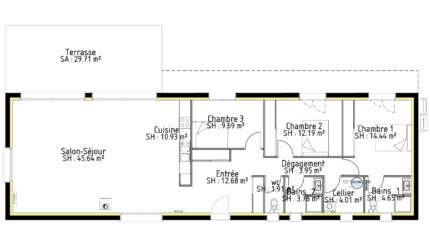
Plan maison 5 pièces 3 chambres Surface maison 123 m2

Cette habitation de 128m² associe modernité et minimalisme.
Avec sa pièce à vivre spacieuse, cette maison s'ouvre sur l'extérieur avec de beaux volumes et une clarté optimale.
L'espace de vie se compose d'un cuisine de 10m² ouverte sur le salon-séjour de 45m².
Cette maison de plain-pied bénéficie de 3 chambres, une wc indépendant et de 2 salles d'eau dont 1 accessible depuis la chambre principale, avec son wc.
La toiture de ce projet peut varier suivant les règles d'urbanisme en vigueur dans votre secteur mais sans pour autant dénaturer l'organisation de l'espace et la modernité de ce projet.

Construire ce modèle ?

    * Champs obligatoires

    Vos informations sont traitées par HEXAOM et transmises à un conseiller commercial qui vous contactera afin de répondre à votre demande. Les plans et images présentés sur notre site sont la propriété d’HEXAOM et ne peuvent pas être reproduits sans son accord. Pour retrouver notre politique de protection des données personnelles et exercer vos droits conformément à la « loi informatique et liberté » cliquez-ici.