PP137_P1850V5

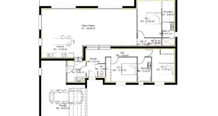
Plan maison 5 pièces 4 chambres Surface maison 131 m2

Cette maison atypique, aux lignes simples et épurées, développe un programme spacieux sur 2 demi-niveaux de 130m².
Idéal pour les terrains légèrement en pente. Il se compose d'une suite d'une suite parentale (comprenant un dressing et une salle d'eau) attenant à l'espace de vie par lequel on accède au second coin nuit par 2 marches.
Cet écart de niveaux permet de dissocier les différents espaces. Le cellier permet la liaison entre le garage la cuisine.

Construire ce modèle ?

    * Champs obligatoires

    Vos informations sont traitées par HEXAOM et transmises à un conseiller commercial qui vous contactera afin de répondre à votre demande. Les plans et images présentés sur notre site sont la propriété d’HEXAOM et ne peuvent pas être reproduits sans son accord. Pour retrouver notre politique de protection des données personnelles et exercer vos droits conformément à la « loi informatique et liberté » cliquez-ici.