PP143_P2703

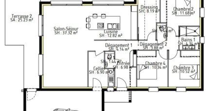
Plan maison 6 pièces 4 chambres Surface maison 143 m2

Découvrez cette superbe maison contemporaine de plain-pied, conçue pour allier confort et modernité. Sa toiture monopente en aluminium apporte une touche unique à son design élégant. Vous serez séduit par ses 4 chambres spacieuses, dont une suite parentale, idéale pour vos moments de détente. Le grand salon-séjour lumineux ouvre sur une vaste terrasse, parfaite pour profiter des beaux jours. Un grand garage, un cellier et deux WC séparés viennent compléter ce bien pratique et fonctionnel. Idéale pour toute la famille, cette maison combine confort, espace et esthétisme.

Construire ce modèle ?

    * Champs obligatoires

    Vos informations sont traitées par HEXAOM et transmises à un conseiller commercial qui vous contactera afin de répondre à votre demande. Les plans et images présentés sur notre site sont la propriété d’HEXAOM et ne peuvent pas être reproduits sans son accord. Pour retrouver notre politique de protection des données personnelles et exercer vos droits conformément à la « loi informatique et liberté » cliquez-ici.