PP144_P2355V4

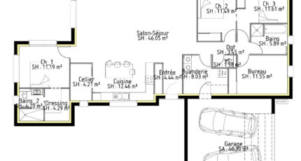
Plan maison 8 pièces 5 chambres Surface maison 144 m2

Cette grande maison se démarque de par sa forme avec son grand garage en "L".
Elle se compose d'une surface habitable de 144 m² composé d'un espace jour central, spacieux avec cuisine ouverte qui donne sur un salon et une salle à manger, orienté sur l'espace terrasse.
Le coin nuit se divise en 2 espaces : un comprend 2 chambres avec placards, une salle de bains et un grand bureau qui peut être transformé en chambre et à l'opposé un second, avec une suite parentale avec Dressing/Salle de bains indépendants.
Ce plan est très fonctionnel et allie esthétique, modernité avec une ligne évolutive pour cette maison de plain-pied.

Construire ce modèle ?

    * Champs obligatoires

    Vos informations sont traitées par HEXAOM et transmises à un conseiller commercial qui vous contactera afin de répondre à votre demande. Les plans et images présentés sur notre site sont la propriété d’HEXAOM et ne peuvent pas être reproduits sans son accord. Pour retrouver notre politique de protection des données personnelles et exercer vos droits conformément à la « loi informatique et liberté » cliquez-ici.