PP151_P2005V2

Plan maison 7 pièces 4 chambres Surface maison 151 m2

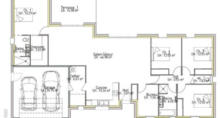
Maison plain-pied en forme de L avec 151m² habitable, et un garage intégré de 50m² pour 2 véhicules.
Son style sobre et épuré font de ce projet un intemporel.
L'espace de vie est central et bénéficie tout de même de 2 orientations, ce qui offre une grande luminosité dans la pièce.
Une terrasse couverte est attenante à la pièce de vie.
Les chambres s'agencent de part et d'autres du séjour. 3 d'un coté plus un bureau/chambre d'amis et de l'autre, 1suite parentale avec dressing. Le coin nuit est fonctionnel avec peu de place perdu en dégagement.
2 salles de bains sont réparties entre les 2 espaces nuit.
Le garage est connecté à la maison par un cellier.
Fonctionnalité et confort sont au rendez-vous.

Construire ce modèle ?

    * Champs obligatoires

    Vos informations sont traitées par HEXAOM et transmises à un conseiller commercial qui vous contactera afin de répondre à votre demande. Les plans et images présentés sur notre site sont la propriété d’HEXAOM et ne peuvent pas être reproduits sans son accord. Pour retrouver notre politique de protection des données personnelles et exercer vos droits conformément à la « loi informatique et liberté » cliquez-ici.