PP167_P2337V4

Plan maison 6 pièces 4 chambres Surface maison 167 m2

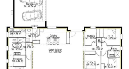
Cette grande maison se compose d'une surface habitable de 167 m² composée d'un espace jour spacieux, traversant avec cuisine ouverte qui donne sur un salon et une salle à manger, orienté sur une grande terrasse.
L'espace nuit se divise en 2 espaces : un avec une suite parentale avec Dressing/Salle de bains indépendants et à l'opposé un second qui se compose de 3 chambres avec placards, salle d'eau, un WC indépendant et un bureau.
Un spacieux cellier est accolé à la cuisine et permet la transition entre le garage et la partie habitable.
Ce plan est très fonctionnel et allie esthétique, modernité.

Construire ce modèle ?

    * Champs obligatoires

    Vos informations sont traitées par HEXAOM et transmises à un conseiller commercial qui vous contactera afin de répondre à votre demande. Les plans et images présentés sur notre site sont la propriété d’HEXAOM et ne peuvent pas être reproduits sans son accord. Pour retrouver notre politique de protection des données personnelles et exercer vos droits conformément à la « loi informatique et liberté » cliquez-ici.