PP191_P2015V6

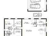
Plan maison 5 pièces 3 chambres Surface maison 140 m2

Maison de Plain-pied originale de formes simple et épurée.
Elle se compose d'une surface habitable de 140m² comprenant un espace salon/séjour/cuisine de 46m² et d'un bureau ouvert sur la pièce de vie de 12m². Le coin nuit, possède une grande suite parentèle avec salle de bain et dressing ouverts sur la chambre, 2 chambres avec salle de bain et WC indépendants.
Un garage de 50 m² est indépendant de la maison, séparé par un abri couvert, sous lequel un véhicule peut stationner.

Construire ce modèle ?

    * Champs obligatoires

    Vos informations sont traitées par HEXAOM et transmises à un conseiller commercial qui vous contactera afin de répondre à votre demande. Les plans et images présentés sur notre site sont la propriété d’HEXAOM et ne peuvent pas être reproduits sans son accord. Pour retrouver notre politique de protection des données personnelles et exercer vos droits conformément à la « loi informatique et liberté » cliquez-ici.