PP60_P33047V2

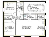
Plan maison 4 pièces 2 chambres Surface maison 60 m2

Passée la porte d'entrée, vous serez accueilli par une pièce de vie baignée de lumière, lieu central de la maison, où se dessinent naturellement les moments de partage. La cuisine, ouverte et conviviale, s'accompagne d'un cellier attenant, discret mais indispensable, pensé comme le prolongement pratique du quotidien.
L'espace nuit se compose de deux chambres, toutes deux dotées de placards intégrés, promesse d'un intérieur épuré et ordonné. Une salle d'eau élégante et des toilettes séparées viennent compléter cet agencement harmonieux.
Ici, tout est de plain-pied, fluide et accessible. Une maison à taille humaine, idéale pour qui cherche simplicité, confort et sérénité.

Construire ce modèle ?

    * Champs obligatoires

    Vos informations sont traitées par HEXAOM et transmises à un conseiller commercial qui vous contactera afin de répondre à votre demande. Les plans et images présentés sur notre site sont la propriété d’HEXAOM et ne peuvent pas être reproduits sans son accord. Pour retrouver notre politique de protection des données personnelles et exercer vos droits conformément à la « loi informatique et liberté » cliquez-ici.