PP65_P2839V5

Plan maison 4 pièces 2 chambres Surface maison 65 m2

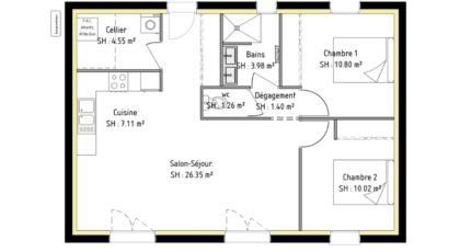
Cette maison de plain-pied de 65m² composée de 2 chambres offre un salon-séjour chaleureux de 33.50m².
L'intérieur propose un hall d'entrée avec un grand placard qui dessert le cellier et la cuisine ouverte sur une pièce de vie agréable et lumineuse. Coté nuit, on retrouve 2 chambres de 10m² et 11m² avec une salle d'eau et un WC indépendant.

Construire ce modèle ?

    * Champs obligatoires

    Vos informations sont traitées par HEXAOM et transmises à un conseiller commercial qui vous contactera afin de répondre à votre demande. Les plans et images présentés sur notre site sont la propriété d’HEXAOM et ne peuvent pas être reproduits sans son accord. Pour retrouver notre politique de protection des données personnelles et exercer vos droits conformément à la « loi informatique et liberté » cliquez-ici.