PP80_P2464V2_Duplicata

Plan maison 4 pièces 2 chambres Surface maison 93 m2

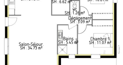
Cette maison de plain-pied de 80m² se compose d'un spacieux espace de vie de 43m² avec cuisine et son cellier accolé de 6.62m².
La partie nuit comprend une salle d'eau et 2 belles chambres avec chacune un placard.
Sa forme de L lui permet de gérer les vis-à-vis avec le contexte environnant et d'abriter un espace terrasse, du vent et des intempéries.
La pente et le coloris de sa toiture sont a adpter aux prescriptions du lieu de construction, mais aussi de vos envies.

Construire ce modèle ?

    * Champs obligatoires

    Vos informations sont traitées par HEXAOM et transmises à un conseiller commercial qui vous contactera afin de répondre à votre demande. Les plans et images présentés sur notre site sont la propriété d’HEXAOM et ne peuvent pas être reproduits sans son accord. Pour retrouver notre politique de protection des données personnelles et exercer vos droits conformément à la « loi informatique et liberté » cliquez-ici.