PP95_P2623V3

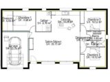
Plan maison 5 pièces 3 chambres Surface maison 95 m2

Plain-pied de 95 m² habitable composé d'un espace salon séjour de 35m² et d'une cuisine ouverte de 10m². Le grande pièce à vivre est traversante et centrale. Elle dessert deux parties nuit.
Une à l'arrière du garage avec une chambre parentale et son dressing. L'autre avec 2 chambres, une salle d'eau et un WC indépendant.
Un garage de 20m² est intégré au volume.
Fonctionnalité, confort et rangement sont au rendez-vous, avec un style épuré et moderne.

Construire ce modèle ?

    * Champs obligatoires

    Vos informations sont traitées par HEXAOM et transmises à un conseiller commercial qui vous contactera afin de répondre à votre demande. Les plans et images présentés sur notre site sont la propriété d’HEXAOM et ne peuvent pas être reproduits sans son accord. Pour retrouver notre politique de protection des données personnelles et exercer vos droits conformément à la « loi informatique et liberté » cliquez-ici.