PP96_P640V9

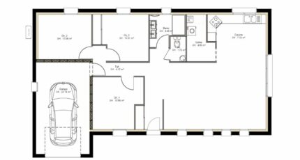
Plan maison 5 pièces 3 chambres Surface maison 96 m2

Cette maison de plain-pied se démarque par ses façades rythmées par de grandes fenêtres verticales, qui lui donne un style unique.
Cette composition de baies apportent luminosité et perspectives depuis l'intérieur et préserve l'intimité depuis l'extérieur.
La pièce à vivre se compose d'un salon / séjour spacieux avec une cuisine ouverte accompagné de son cellier qui fait office d'arrière cuisine.
Le coin nuit comprend 3 belles chambres ainsi qu'une salle de bain avec tout l'équipement nécessaire.
L'ensemble fait 96m² habitable et un garage est intégré au volume avec une surface de 21m².

Construire ce modèle ?

    * Champs obligatoires

    Vos informations sont traitées par HEXAOM et transmises à un conseiller commercial qui vous contactera afin de répondre à votre demande. Les plans et images présentés sur notre site sont la propriété d’HEXAOM et ne peuvent pas être reproduits sans son accord. Pour retrouver notre politique de protection des données personnelles et exercer vos droits conformément à la « loi informatique et liberté » cliquez-ici.