PP97_P2248V7

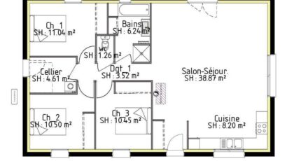
Plan maison 5 pièces 3 chambres Surface maison 97 m2

La maison Plain-pied 65 SG est un projet optimisé en 2 chambres sans garage.
Elle adopte une forme simple et intemporel, offrant la possibilité de s'adapter facilement sur une parcelle.
Elle se compose d'une surface habitable de 65 m² composée d'un espace jour de 36 m² qui n'a rien a envier à une maison en 3 ou 4 chambres.
La pièce de vie est identique, seul le nombre de chambres varie.
On retrouve une entrée avec penderie, une cuisine semi-ouverte et un beau salon / séjour.
L'espace nuit se compose de 2 chambres avec placards, d'une salle de bains et d'un toilette indépendant.
Ce plan est très fonctionnel et allie esthétique, modernité avec une ligne évolutive pour cette maison de plain-pied.
De base, comme le projet ne comporte pas de garage, le plan dispose d'un spaciaux cellier pour vos rangement, buanderie et arrière cuisine.
Il est directement accessible depuis la partie habitable et a terme peut servir de pièce de communication pour un futur garage en pignon.
Tous nos projets sont personnalisables donc n'hésitez pas à nous contacter pour une étude.

Construire ce modèle ?

    * Champs obligatoires

    Vos informations sont traitées par HEXAOM et transmises à un conseiller commercial qui vous contactera afin de répondre à votre demande. Les plans et images présentés sur notre site sont la propriété d’HEXAOM et ne peuvent pas être reproduits sans son accord. Pour retrouver notre politique de protection des données personnelles et exercer vos droits conformément à la « loi informatique et liberté » cliquez-ici.