PPC94_P1098V3

Plan maison 5 pièces 3 chambres Surface maison 94 m2

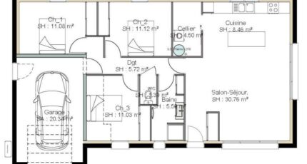
Maison de Plain-pied de forme simple comprenant 3 chambres et possibilité d'aménager les combles.
Elle se compose d'une surface habitable de 94m² composée d'un espace jour de 38 m² : une entrée avec penderie, une cuisine ouverte et un salon / séjour.
L'espace jour est ouvert sur 3 façades, facilitant l'ensoleillement et la clarté pour un agrément de confort indéniable. C'est également un avantage pour la consommation d'énergie déjà très maîtrisée avec la réglementation en vigueur.
L'espace nuit se compose de 3 chambres, d'une salle de bains avec placards et d'un toilette indépendant.
Un garage est intégré au volume.

Construire ce modèle ?

    * Champs obligatoires

    Vos informations sont traitées par HEXAOM et transmises à un conseiller commercial qui vous contactera afin de répondre à votre demande. Les plans et images présentés sur notre site sont la propriété d’HEXAOM et ne peuvent pas être reproduits sans son accord. Pour retrouver notre politique de protection des données personnelles et exercer vos droits conformément à la « loi informatique et liberté » cliquez-ici.