PPCA139_P730V6

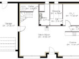
Plan maison 6 pièces 4 chambres Surface maison 139 m2

Cette maison de plain-pied de 139m² développe un programme réparti sur 2 niveaux.
Elle se compose d'un spacieux espace de vie de 53m² avec cuisine, cellier, salon / séjour au rez de chaussée et d'une suite parentale avec dressing et salle d'eau privatifs.
Dans les combles, on retrouve 3 chambres avec une salle de bain, un wc indépendant et une mezzanine. Le garage est accolé à la maison. On y excède depuis la partie jour.

Construire ce modèle ?

    * Champs obligatoires

    Vos informations sont traitées par HEXAOM et transmises à un conseiller commercial qui vous contactera afin de répondre à votre demande. Les plans et images présentés sur notre site sont la propriété d’HEXAOM et ne peuvent pas être reproduits sans son accord. Pour retrouver notre politique de protection des données personnelles et exercer vos droits conformément à la « loi informatique et liberté » cliquez-ici.