PPE143_P1150V2

Plan maison 6 pièces 4 chambres Surface maison 143 m2

Cette maison plain-pied à étage simple et épurée, développe un programme vaste réparti sur 2 niveaux.
La répartition des pièces sur 2 étages permet de limiter son emprise au sol et équilibrer sa volumétrie générale.
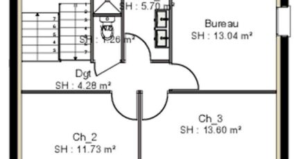
Elle se compose de 4 belles chambres (dont 1 peut être convertie en bureau), une grande pièce de vie, une mezzanine à l'étage et 2 sdb avec un dressing.
Le garage communique avec l'espace de vie par le hall d'entrée.
L'espace est optimisé avec peu de dégagement.
Son rez-de-chaussée en L permet de créer un espace intime vis-à-vis du contexte environnant.

Construire ce modèle ?

    * Champs obligatoires

    Vos informations sont traitées par HEXAOM et transmises à un conseiller commercial qui vous contactera afin de répondre à votre demande. Les plans et images présentés sur notre site sont la propriété d’HEXAOM et ne peuvent pas être reproduits sans son accord. Pour retrouver notre politique de protection des données personnelles et exercer vos droits conformément à la « loi informatique et liberté » cliquez-ici.