PPE155_P2686V6

Plan maison 7 pièces 5 chambres Surface maison 155 m2

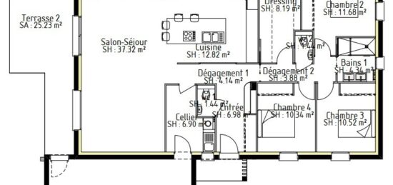
Cette maison plain-pied à étage développe un programme vaste réparti sur 2 niveaux.
La répartition des pièces sur 2 étages permet de limiter son emprise au sol et équilibrer sa volumétrie générale.
Le rez de chaussée, se compose d'une suite parentale et d'un bureau pouvant être transformé en chambre d'amis ou en salle de jeux, d'une grande pièce de vie de 52m², d'un WC indépendant et d'un grand cellier pouvant accueillir beaucoup de rangement. A l'étage, on retrouve l'espace dédié aux enfants avec 3 belles chambres, une salle de bain, un deuxième WC indépendant et une mezzanine donnant sur un vide sur séjour.
Le garage communique avec l'espace habitable par un cellier.
L'espace est optimisé avec peu de dégagement.

Construire ce modèle ?

    * Champs obligatoires

    Vos informations sont traitées par HEXAOM et transmises à un conseiller commercial qui vous contactera afin de répondre à votre demande. Les plans et images présentés sur notre site sont la propriété d’HEXAOM et ne peuvent pas être reproduits sans son accord. Pour retrouver notre politique de protection des données personnelles et exercer vos droits conformément à la « loi informatique et liberté » cliquez-ici.