SS110_P2134V2

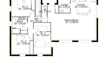
Plan maison 5 pièces 4 chambres Surface maison 110 m2

Cette maison est un sous-sol intégral avec toute la partie vie de plain-pied, idéal pour un terrain en pente.
Le rez-de-chaussé de 110m² comprend 3 chambres dont une avec dressing, salle de bain et espace de vie. Ce dernier comprend une grande cuisine attenante à un cellier.
Au sous-sol, le volume dégage 125 m², idéal pour garer les véhicules, faire du rangement et du bricolage, ou encore agrandir avec de nouvelles pièces.

Construire ce modèle ?

    * Champs obligatoires

    Vos informations sont traitées par HEXAOM et transmises à un conseiller commercial qui vous contactera afin de répondre à votre demande. Les plans et images présentés sur notre site sont la propriété d’HEXAOM et ne peuvent pas être reproduits sans son accord. Pour retrouver notre politique de protection des données personnelles et exercer vos droits conformément à la « loi informatique et liberté » cliquez-ici.