SS125_P279

Plan maison 6 pièces 4 chambres Surface maison 125 m2

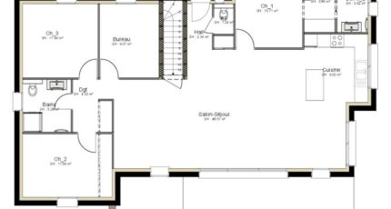
Cette maison de 125m² avec un sous sol se démarque par sa forte moderne et épurée. Le rez de chaussée composé d'un espace jour de 60 m² : une entrée avec penderie et wc, une cuisine ouverte et un beau salon / séjour.
L'espace nuit est séparé en 2 parties. La première, le coin des parents avec une salle d'eau et un dressing. La deuxième partie est réservée aux enfants avec 3 chambres et une deuxième salle d'eaux avec toilettes.
Au sous-sol, le volume dégage 137 m², idéal pour garer les véhicules, faire du rangement et du bricolage, ou encore agrandir avec de nouvelles pièces.

Construire ce modèle ?

    * Champs obligatoires

    Vos informations sont traitées par HEXAOM et transmises à un conseiller commercial qui vous contactera afin de répondre à votre demande. Les plans et images présentés sur notre site sont la propriété d’HEXAOM et ne peuvent pas être reproduits sans son accord. Pour retrouver notre politique de protection des données personnelles et exercer vos droits conformément à la « loi informatique et liberté » cliquez-ici.