SS159_P1176V2

Plan maison 6 pièces 3 chambres Surface maison 159 m2

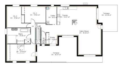
Grande maison sur sous-sol complet développant une surface habitable de 159 m² !
La pièce de vie fait 80m² avec cuisine semi-ouverte (avec cellier), salon séjour et donne sur 2 terrasses, aux orientations différentes.
Le coin nuit comprend 3 chambres mais de trsè grandes chambres, dont une suite parentale de 20m² !
La salle de bains est un espace bien-être avec un jaccuzzi en complément des équipements habituels.
Bref, un projet à part entière qui fait réver.
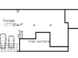
Au sous-sol, 178m² de surface pour ranger, garer les véhicules et aménager des pièces supplémentaires.

Construire ce modèle ?

    * Champs obligatoires

    Vos informations sont traitées par HEXAOM et transmises à un conseiller commercial qui vous contactera afin de répondre à votre demande. Les plans et images présentés sur notre site sont la propriété d’HEXAOM et ne peuvent pas être reproduits sans son accord. Pour retrouver notre politique de protection des données personnelles et exercer vos droits conformément à la « loi informatique et liberté » cliquez-ici.