SS86_P1171V3

Plan maison 4 pièces 2 chambres Surface maison 86 m2

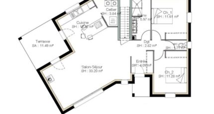
Cette maison sur sous-sol se démarque par sa forme en V qui lui confère un style unique.
Son programme comprend un grand espace jour de 50m² avec cuisine + cellier, salon, séjour et hall, ainsi que 2 grandes chambres avec leur salle de bains et sanitaires.
Au sous-sol, un espace de 103m² à disposition pour les véhicules, du rangement ou pour agrandir dans un second temps.
En complément du coin jour, une terrasse couverte permet de profiter de l'extérieur à l'abri des intempéries ou du soleil en été.

Construire ce modèle ?

    * Champs obligatoires

    Vos informations sont traitées par HEXAOM et transmises à un conseiller commercial qui vous contactera afin de répondre à votre demande. Les plans et images présentés sur notre site sont la propriété d’HEXAOM et ne peuvent pas être reproduits sans son accord. Pour retrouver notre politique de protection des données personnelles et exercer vos droits conformément à la « loi informatique et liberté » cliquez-ici.