SS92_P3104

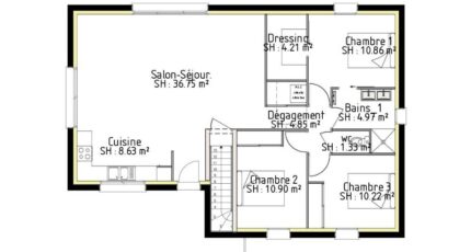
Plan maison 5 pièces 3 chambres Surface maison 92 m2

Laissez vous séduire par cette maison moderne de 92m² au design exceptionnel ! Avec ses 3 chambres, dont une suite parentale avec dressing et accès privatif à la salle d'eau, elle allie confort et intimité. Le salon-séjour de 44m² baigné de lumière vous offre un espace de vie agréable, tandis que le grand garage de 106m² en sous-sol vous permet d'imaginer de multiples aménagements. Un bien unique, alliant espace, style et praticité !

Construire ce modèle ?

    * Champs obligatoires

    Vos informations sont traitées par HEXAOM et transmises à un conseiller commercial qui vous contactera afin de répondre à votre demande. Les plans et images présentés sur notre site sont la propriété d’HEXAOM et ne peuvent pas être reproduits sans son accord. Pour retrouver notre politique de protection des données personnelles et exercer vos droits conformément à la « loi informatique et liberté » cliquez-ici.